濕式報警閥說明書
1、說明
ZSFZ濕式報警閥是只允許水單方向流入噴水系統,并在規定的壓力和流量下驅動配套部件報警的一種單向閥,它與水流指示器,壓力開關,灑水噴頭等組成的濕式自動噴水滅火系統是一種應用極為廣泛的固定滅火系統。該系統管網內常年充滿一定壓力的清水,長期處于伺應工作狀態,當保護區域內某處發生火災時,區域內環境溫度升高,灑水噴頭的熱敏感元件(玻璃球)中的有機溶液發生熱膨脹面產生很大的內壓力,直到玻璃球外殼發生破碎,從而開啟噴頭噴水,并且自動啟動整個系統,發出聲光報警信號,以達到火災報警及控制火情、撲滅火災的目的。
2、產品結構及工作原理
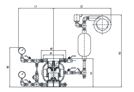
圖1 濕式報警閥結構圖
1-壓力表 2-球閥 3-側面連接管 4-雙止回主閥
5-水力警鈴 6-壓力開關7-延時器
8-過濾器 9-微量泄水裝置10-止回閥
2.1產品的結構和功能
從圖1可知,ZSFZ濕式報警閥裝置由雙止回主閥、延遲器、水力警鈴、壓力開關、微量泄水裝置、過濾器等組成。
2.1.1濕式報警閥
a)雙止回閥結構 滴水不漏
本濕式報警閥為雙止回型報警閥,主要由閥體、第一級止回閥和第二級止回閥等部分組成,整個閥體被分成上中下三個腔,上腔(出水側)與系統管網相通,下腔(供水側)與進水水源相通,中腔與水力警鈴和壓力開關相連接。在主閥上下兩個止回閥之間形成空氣隔斷,有效阻斷回流,平時滴水不漏。
b)伺服
當系統處于伺服狀態時,上下兩個止回閥都處于關閉狀態,中腔壓力等于大氣壓,通往水力警鈴的報警水道沒有壓力差,因而水力警鈴和壓力開關不動作;
c)開啟
當上腔壓力P2小于下腔壓力P1(注:P2/P1≤0.9)時,第一級止回閥開啟(差壓啟動),中間腔進水,首先流向水力警鈴報警和壓力開關,在中間腔壓力達到一定壓力時,出口止回閥開啟,通向滅水系統噴水滅火;
d)防止誤報警
1)當與上腔連通的噴淋系統管網有滲漏(流量較?。毫ο陆禃r、平時可自動通過主閥側面連接管補充系統壓力,主閥不開啟,從而避免系統的誤報警;
2)當與下腔連通管道壓力頻繁變化時,主要進口壓力P1不大于系統壓力1.1倍P2,雙止回主閥不會開啟,多余壓力通過側面的止回閥和連接管,流到上腔的噴淋系統,壓力沖擊不大時,可避免了誤報警。
2.1.2延遲器
延遲器是一個有進水口和出水口的圓筒形儲水容器,平時放空;
下端設有進水管道和微量泄水裝置,與報警主閥的中間連接口相通,在進水管道上設有過濾器;上端設有管道與水力警鈴和壓力開關連接;由于系統的供水源壓力沖擊較大,使主閥開啟,水流先經過中間腔,再進入延遲器,由于水源壓力波動的時間很短,活塞很快就能自動復位(關閉),所以進入延遲器的水量很小,并經過底部的泄水口排泄;延遲器的這一緩沖時間作用,避免了水流壓力波動而引起水力警鈴的誤報警。延遲器有效延遲時間為5~90S,壓力沖擊停止后,遺留在延遲器中的水由泄水口排出,排完所需時間(排水時間) 5min左右。
2.1.3水力警鈴和壓力開關
水力警鈴是一種水力驅動的機械裝置。由殼體、葉輪、鈴錘和鈴蓋等組成。
壓力開關是水力驅動的無源電信號開關,與消防水泵聯動。
當主閥開啟后,水流進過中間腔和延時器流向水力警鈴和壓力開關,在一定的水流壓力下,推動葉輪帶動鈴錘轉臂旋轉,使鈴錘連續擊打鋁鈴而發出報警鈴聲;同時壓力開關閉合,向消防泵發出啟動信號。
2.1.5適應場合與環要求
ZSFZ濕式報警裝置使用環境溫度4℃-70℃的場所,通常安裝于賓館,商場,醫院,電影院,辦公樓,石油化工罐區,高層建筑,倉庫和地下庫等有火災危險的場所。對于自動噴水滅火系統的消防工程設計,施工監理按GB50084-2001(2005) 《自動噴水滅火系統設計規范》內各條款執行。產品標準5135.2-2003 《自動噴水滅火系統2部分,濕式報警閥,延遲器,水力警鈴》
3、產品型號主要參數
1)型號規格:ZSFZ 200
2):工作壓力1.6MPa
4、安裝與調試
4.1安裝
4.1.1、濕式報警閥安裝前應先進行滲漏試驗,試驗壓力為額定工作壓力的2倍,保壓5min以上,閥活塞處應無滲漏;
4.1.2、本裝置應豎直地安裝在試壓和沖洗合格的管路上,注意水流方向,安裝位置應考慮維修、保養時有足夠的操作空間;
4.1.3、系統管路應進行徹底沖洗,管內應涂有防銹層,保證管路內沒有臟物污垢;
4.1.4、各排水口應用管路單獨接入下水道,保持暢通無阻便于統一排水;
4.1.5、壓力表應轉向看清讀數的位置;
4.1.6、水力警鈴和報警閥的位置,連接的管路在出廠時已經安裝就緒,如需重新安排管路,其水平距離≤20m,高差≤5m。

圖3-濕式報警閥外形尺寸圖
4.2、調試
4.2.1管網系統安裝完畢后,向系統管路中充水,緩慢升壓并將管路中的空氣排凈,升壓至系統工作壓力,檢查整個系統有無滲漏,合格 后作報警試驗和管路供水試驗。
4.2.2、報警試驗:開啟末端試驗閥(裝在系統中最末端),水力警鈴、壓力開關和水流指示器,應作相應的報警動作?;蜷_啟濕式報警閥裝置上的排水球閥(4),當流量相當于一只標準噴頭(通徑為15mm,流量系數K=80±4)時,水力警鈴和壓力開關應作相應的報警動作。
4.2.3、打開報警試驗球閥(10),進水側水流從銅管直接流入報警裝置,在閥瓣不開啟伺應狀態情況下,也可以試驗壓力開關和水力警鈴報警性能試驗。
4.2.4、管路供水試驗:打開排水球閥(4),應有大量水流穩定地流出來,說明管路供水通暢正常,否則要檢查:管路系統進行排氣清除堵塞,保證暢通無阻。
5、定期檢查和維修保養
5.1、閥活塞上的橡膠密封面,應及時清除附著的污垢和異物,橡膠密封件使用壽命一般在十八個月內,若有磨損、老化,應及時更換。
5. 2、閥座密封圈環形槽內的小孔和密封面,應清除污垢異物,密封面不應劃傷,小孔保持通暢,不能修復應予更換。
5.3、及時清理報警閥裝置上過濾器內的臟物,保持管路通暢。
5.4、檢查和清理延遲器內的臟物,節流小孔不應有異物堵塞。
6.濕式報警閥工作原理及維護 濕式報警閥是自動噴水滅火系統的中樞神經,它的正常工作與否直接影響著整個系統的正常運行,因此對濕式報警閥的日常維護十分重要。 1、應半月檢查一次警鈴轉動是否正常,檢查時打開放水閥,報警閥活塞因水壓差而自動打開,水流入延遲器經20-30秒后,警鈴發出報警聲響。如果警鈴不發出響聲,應檢查整個警鈴管道,排除其水垢、泥沙及污物,使水流暢通,防止報警失靈。若警鈴校驗旋塞關閉后,警鈴仍發聲,則應檢查校驗旋塞是否關緊、在報警閥的環形水槽上是否積聚了障礙物、報警閥活塞下的橡膠是否老化或皺褶。對這些故障應及時排除。 2、半年檢查一次流動水壓,檢查時打開放水閥,警鈴發出報警聲響,此時,壓力表所顯示的壓力值不應明顯下降,如果下降較為顯著,應檢查閘閥是否堵塞或未開最大;如果壓力表所顯示的壓力下降比較明顯,且警鈴不報警,應檢查濕式報警止回閥的閥活塞上下啟動是否正常。 3、檢查閥活塞上橡膠墊片的密封面,清除附著在橡膠密封墊上的污物和異物;如有磨損或損壞,應及時更換。 4、每年應檢查一次密封件和閥座環形槽,清除污物或異物;如有破損,應以備件更換。 5、根據消防用水的水質情況,定期打開過濾器上排污口,清理臟物。 6、日常注意消防水池的水位及水壓和相應閥門所處狀態是否符合規范要求。 7、誤報警的處理: 發現誤報警時,可檢查整個進口管網系統水泵是否有異常啟動,檢查延遲器溢出孔是否堵塞或排水不暢。 檢查濕式報警閥閥瓣組件與閥座之間是否密封不嚴,使大量的水進入延遲器。 檢查管網中的噴頭是否因意外原因導致將釋放機構啟動。 查出誤報警原因后,應及時處理,以確保系統任何時候都處于良好的伺服備用狀態。
7.免責聲明
安裝本產品前須進行管道沖洗,管道沖洗后應符合規范要求,否則導致我司產品故障或損壞,以及系統故障,我方概不負責。
產品推薦

