消防信號閘閥產品說明書
1.產品簡介
1.1.概述
消防信號閘閥,是在消防閘閥基礎上附加立柱或表盤式信號裝置,除了可輸出閥門的現場開度外,還可輸出遠傳開度或/和行程開關控制電信號,實現遠程有線監控。公司消防信號閘閥按連接方式分為法蘭式和溝槽式兩種。
1.2.原理功能
消防信號閘閥主要應用在需要遠程監控的場合,可以防止閥門被誤關閉或誤開啟,即保持閥門的常開或常關狀態;也可即時監控閥門的開度情況。
例如消防噴水系統的供水管路上,當閥門被誤關閉到一定開度(此時流量不小于全開流量的80%)時,閥門被關閉的電信號即可傳到消防控制中心。這樣供水管路就可得到及時監控,使閥門保持常開狀態,確保供水安全。在其它的管道系統中,也能監控閥門的工作狀態。
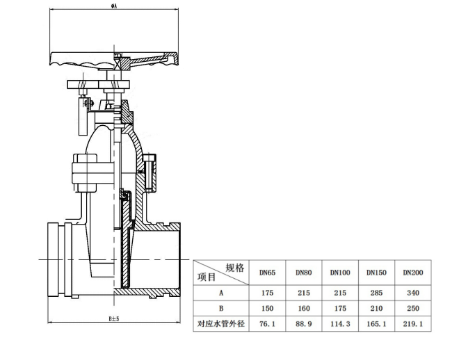
2.產品參數
消防信號閘閥,為立柱式常開信號裝置。在一定開度時可輸出一遠程電信號,防止閥門被誤關閉。詳細使用方法見后。



法蘭式和溝槽式外形尺寸
3.使用注意事項
手輪、手柄及傳動機構均不允許作起吊用,并嚴禁碰撞。
雙閘板閘閥應垂直安裝(即閥桿處于垂直位置 , 手輪在頂部 )。
帶有旁通閥的閘閥在開啟前應先打開旁通閥(以平衡進出口的壓差及減小開啟力 )。
如果閥門經常開關使用 , 每月至少潤滑一次。
4.消防信號閘閥安裝說明
1、 小心打開包裝,并注意閥門上的標識和銘牌內容是否與使用要求相符。
2、 拆除閥門通道兩端的端蓋,去除端面防護涂層。用壓縮空氣清潔閥門內部,確保沒有任何異物如木屑、塑料等包裝材料附在閥門內部、閥座或連接端面處。
3、 通過閥門端部通道檢查閥門內部的清潔情況﹑看是否有雜物和有害物質的侵蝕。
4、 檢查閥門的流向標記,以確保閥門正確的安裝方向。(適用于低溫閘閥)
5、確保閥門在管線上能正確安裝并擁有可靠的支撐,如有必要,在管線上設置膨脹與彎曲補償結構,避免過度的管道應力對閥門造成損害。
6、閥門應盡量安裝在水平管道上,閥桿朝上。
7、安裝時,閘板應處于關閉位置,以確保安裝進程中不致損壞閥座/閘板密封面。
5.免責聲明
安裝本產品前須進行管道沖洗,管道沖洗后應符合規范要求,否則導致我司產品故障或損壞,以及系統故障,我方概不負責。
產品推薦

