1.概述
ZDMS 0.6/ 5S-ZX、ZDMS 0.6/ 10S-ZX(共2種型號)自動跟蹤定位射流滅火裝置型,將計算機技術、火災傳感技術、圖象采集與信號處理技術、機械傳動技術有機地結合在一起,一旦確認在其保護范圍內發生火災,該裝置會立即啟動,對火源進行掃描和精確定位,并啟動水泵噴水滅火,同時發出警報。將火源撲滅后,裝置會自動停止射水。在滅火過程中,控制室值班人員可根據裝置傳回的現場圖象對裝置進行遠程人工控制,使得滅火過程更加安全可靠。本裝置既可撲滅火災,又可有效避免水漬損失,是現代化、智能型主動滅火設備。

2. 特點
· 發現火情早,撲救火災準確、及時;
· 火災探測與聯動控制高度一體化,不需要外接控制模塊;
· 火災現場圖像信號采集,有利于人工操作與控制;
· 遠程總線檢測和參數整定,系統調試及維護簡單、方便;
· 整體密封,防塵效果好;
· 柱形射水,滅火效率高,保護范圍廣;
· 供水、供電管路簡單,有利于工程設計和施工;
· 火災撲滅后自動停止射水,有效避免水漬,減少損失。
3.基本參數與接線端子定義
3.1 基本參數

4.注意事項
· 不得將導線功能混淆。
· 不得直接轉動裝置的殼體。
· 裝置的外接導線應設接線盒,采用壓接或焊接,焊接時不得用腐蝕性焊劑。
· 裝置的外接導線應采用金屬軟管保護。
· 傳感器掃描狹縫不應有堵塞物,隨時保持清潔。當傳感器的濾光片上有浮塵時,
由專業維護人員進行清潔。
· 裝置不宜安裝在正常情況下有明火和紫外線強烈的場所。
·搬動、安裝滅火裝置時,要注意保護滅火裝置底部的傳感器,不要將滅火裝置直接置于桌面或放于地上,以免傳感器破碎;
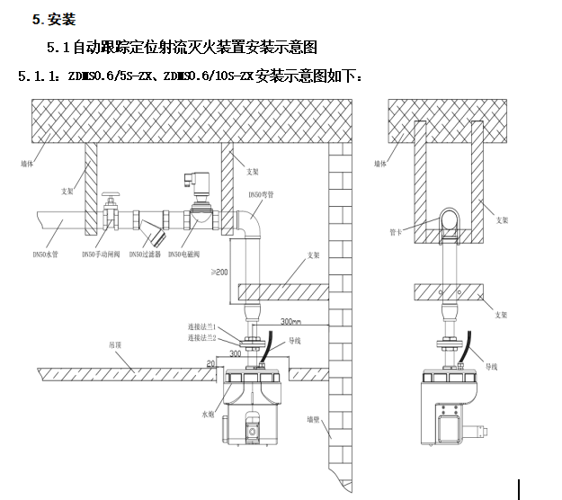
·滅火裝置/消防水炮進水口支管必須安裝防晃支架,并且防晃支架在短路管上的固定點距離滅火裝置/消防水炮上法蘭不應大于200mm,以保證滅火裝置/消防水炮在轉動和噴水時不發生晃動;
·嚴禁用力扳動水平機構和垂直(噴嘴)機構,以免損壞滅火裝置內的限位開關;滅火裝置的配套線束要整理整齊綁在滅火裝置上法蘭的上部,留一定的余量,使滅火裝置旋轉自如。并保證滅火裝置在旋轉時,周圍沒有障礙物,防止線皮磨損漏電,影響系統正常工作。
·必須在系統管網水壓試壓,各接頭處無滲漏,管網沖洗合格后安裝滅火裝置/消防水炮;
·建議在電磁閥前安裝過濾器,防止噴水后因管網雜質導致電磁閥關閉不嚴出現漏水現象;
·必須嚴格執行《自動掃描定位噴水滅火系統施工及驗收規范》;
·現場有電氣焊、明火作業時,應將滅火裝置切換到手動狀態或關閉滅火裝置電源;
·安裝在舞臺、演播廳、可兼作演藝用的場所的滅火裝置,在演出及排練時,應將滅火裝置切換到手動狀態或關閉裝置電源。

5.2安裝步驟:
首先將手動閘閥、過濾器、DN50電磁閥水平安裝在支管上,并固定好防晃支架,然后將異徑彎頭與支管連接,短立管應安裝防晃支架、再將水炮連接件的上連接體與異徑彎頭進行連接,最后將水炮(滅火裝置)與上連接體進行對接并用管鉗或活動扳手固定。
5.3安裝注意事項:
1、電磁閥安裝后嚴禁傾斜,應保持水平。
2、安裝水炮(滅火裝置)時嚴禁用手轉動水炮或用其它工具敲打水炮或扳動水炮出水口,以免損壞水炮(滅火裝置)。人為損壞廠家概不負責。
3、水炮(滅火裝置)應垂直向下安裝,嚴禁傾斜。
4、天花開口應大于310mm或開口距離裝置外殼20mm以上、保證水炮能正常旋轉。
5、沿墻壁安裝時,水炮(滅火裝置)距墻宜大于或等于300mm,避免與墻壁產生磨擦。
6、水炮(滅火裝置)輕拿輕放下部紫外管禁止觸碰。

產品推薦

