1. 產品特點:
無機纖維紡織物經特殊處理后制作成簾面,采用手動收卷、電動釋放或手動釋放的方式進行控制,并可與報警主機進行聯動,適用于各類工業與民用建筑中需進行防煙分隔的部位及各種需采用氣體滅火時進行密封而又不便于采用防火卷簾等其他封閉方式的場合。

2.技術性能
2.1耐火溫度>600℃。簾面由多種耐高溫非金屬材料經特殊處理組合而成。質地柔韌,抗拉強度大,具有金屬卷簾無法相比的耐高溫、耐腐蝕性能。
2.2 體積?。汉熋婧穸缺?,占用空間小,可以適用不同的建筑物需求。
2.3 重量輕:簾面重約3.5kg/m2,是鋼質防火卷簾重量的1/10,建筑物無須作預埋處理
2.4 啟動靈活,噪音小且無需水幕保護,大幅度降低了工程的造價。
2.5 顏色具有多樣性,可以和內裝修進行搭配,給人以舒適的感覺。
2.6 有二種操作方式:火災消防中心聯動控制(由消防控制中心發出控制信號),手動控制(由按鈕控制盒實現操作)。
2.7 控制方式為電動(DC24V/0.5A)和手動控制下滑,手動收卷復位。
3. 結構特征與安裝方式
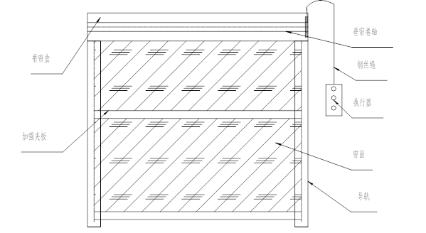
3.1 結構:由簾面、卷軸、支座、執行器、導軌等組成,卷軸兩端由特殊設計的機構支承,能補償墻面的平面誤差,使卷軸在任何情況下均能轉動自如。
3.2 安裝方式:按導軌在建筑中的位置也分為中封式及側封式兩種。
4. 維護管理
4.1 軌道內嚴禁有其他物品接觸簾面。
4.2 初次使用宜按安裝要求檢查是否完善并進行試運行。如有異?,F象應停止使用。
4.3 日常運行啟動開始時應先做手動釋放,在判明運行正常后在通電動作。
4.4 手搖機構,只作為垂簾復位時使用,平時應將內六角扳手放于執行器的附近。
4.5 垂壁平時必須處于正常開啟狀態,遇火災時,方可發揮阻火作用。因此,該垂簾應有專人負責檢查管理。對平時很少用的垂簾應每月檢查運行一次,檢查各個支架上的緊固螺絲是否緊固,機械傳動是否正常、電器控制是否靈敏,若發現問題或故障,必須及時排除。
4.6 垂簾的簾面嚴禁用尖硬的硬物穿刺和擊打等損壞簾面的行為發生。
4.7 保持電器盒清潔,防止盒內進水、進油和其他污物,以防各元件松脫、老化短路。







