1. 產品特點:
采用無機纖維紡織物經特殊處理后制作而成的簾面,特點是相對體積較小、重量輕、占用空間小、能耗低、背火面溫度較低,并能顯著降低建筑物的承載負荷,滿足安裝空間的要求。經過國家消防設備檢測部門檢測,耐火極限能達到3h,符合國家規范要求。顏色具有多樣性,可以和內裝飾進行協調搭配,給人以舒適的感覺。
無機復合型防火卷簾適用于各類工業與民用建筑中需防火分隔的部位,大面積的廠房、賓館、倉庫、候機樓等場最宜選用。簾面的高度、寬度一般采用建筑標準中的常用尺寸,亦可按用戶需要進行定制。

2.技術性能
2.1耐火極限≥3.0h。簾面由多種耐高溫非金屬材料經特殊處理組合而成。質地柔韌,抗拉強度大,具有金屬卷簾無法相比的耐高溫、耐腐蝕性能。
2.2 體積?。汉熋婧穸缺?,占用空間小,可以降低建筑物的層高。
2.3 重量輕:簾面重約3.5kg/m2,是鋼質防火卷簾重量的1/10,建筑物無須作預埋處理。
2.4 跨度大:由于簾面重量輕,卷軸的繞度小,所以跨度可達12m以上。
2.5 啟動靈活,噪音小且無需水幕保護,大幅度降低了工程的造價。
2.6 顏色具有多樣性,可以和內裝修進行搭配,給人以舒適的感覺,而不是鋼鐵的冷硬。
2.7 三種操作方式:火災消防中心聯動控制(由消防控制中心發出控制信號);手動控制電動操作(由按鈕控制盒實現電動操作);非常情況下的手動鏈條操作。
2.8 電動機功率0.75kw,動力電源380V、50Hz,控制電源DC24V。
3. 結構與安裝方式
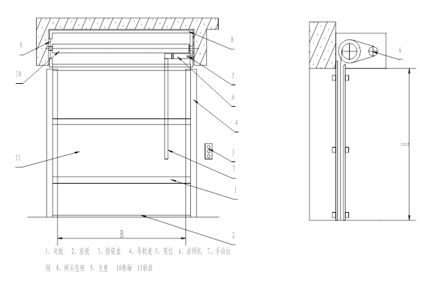
3.1結構:由卷簾簾面、卷軸、支座、啟閉機、控制器等組成。卷軸兩端由特殊設計的機構支承,能補償墻面的平面誤差,使卷軸在任何情況下均能轉動自如。
3.2 安裝方式:按導軌在建筑中的位置也分為中封式及側封式兩種
4. 安裝及調試
4.1 安裝
4.1.1防火卷簾門是通過嵌固在門洞附近墻體上的預埋件或膨脹螺栓安裝的,卷軸中心高為H-h(中封式)或H+h(側封式)。先將墊板焊固在預埋件上,然后用螺栓固定卷軸的左、右支架,并安放卷軸。卷軸安裝后的回轉中心水平度在全長范圍內不應大于2mm,且應轉動靈活。然后安裝減速電動機和電器控制部分,再空負荷試車。
4.1.2卷門機一般安裝于卷門的右端(從屋內朝門外看),如需將其裝于左端,只需松開環形鏈條上方棘爪單向器二螺釘,翻轉180°重新裝配,按鈕開關線白(上)藍(下)色對調。
4.1.3 卷門機的機頭板可用膨脹螺絲固定在柱子上或采在預埋件焊接。
4.1.4 安裝時應使環形鏈條自出口處垂直向下,當不能滿足時,可擰松機體中部四個緊固螺釘,轉動殼體,使環形鏈條符合要求,然后緊固。注意緊固處不得有間隙存在,否則將影響電磁鐵吸力。
4.1.5鏈條安裝時,控制鏈條的垂度5~10mm,可以調整中心距調緊螺釘,使鏈條張緊合理,滿足垂度要求。
4.2調試:
4.2.1試機前應先松開限位器鎖緊螺釘,用手動方法將卷門升或降至極限點處,轉動限位螺套使限位滑塊移至行程開關起斷電時的最佳位置,然后才分別擰緊上行和下行鎖緊螺釘。
4.2.2用手拉環形鏈條讓卷門上升離地面約1米,然后用點動方式進行負載試運行,依運行情況再適當調整。注意運行時間不超過5分鐘。
4.2.3三相卷門機安裝時,電源相序不許接反,否則卷門機不能控制,損壞卷門。
4.2.4卷門機安裝時,應可靠接地。
4.2.5試車后再將簾板安裝在卷軸,再安裝導軌:按指定位置將兩側導軌焊固于墻體的預埋件上,各導軌應在同一垂直的平面上,兩側吻合長度均相等。
4.2.6負荷試車及調試:首先使用手動試運行,再用電動機啟閉數次,并對行程限位開關做相應的調整,直至列卡位、阻滯、限位不準確及異常噪聲等現象為止。
5. 使用與管理
5.1初期使用時,宜按安裝要求檢查是否完善,并按上述試車方法做試運行,如有異常應停機檢查。
5.2防火卷簾門平時必須處于正常使用狀態,遇火災時,方能發揮防火作用。因此,該門應有專人負責檢查管理,并每月定期運行檢查二至三次;電器控制應靈敏,機械傳動應正常,行程開關控制卷簾升降的位置要準確。
產品推薦

